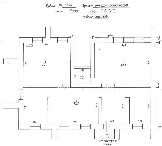
P PAN2010 New Member 29.11.12 #1 199,2 кв.м., вид на Чешку, удобные подъездные пути. Возможна продажа на двоих-троих. 050 980 54 80 Вкладення pl1.jpg 24.6 КБ Перегляди: 224 pl4.jpg 36.8 КБ Перегляди: 202 pl5.jpg 32.9 КБ Перегляди: 243 pl6.jpg 34.4 КБ Перегляди: 198 pl3_small.jpg 4.6 КБ Перегляди: 281