Z3RG Забанен 16.07.11 #1 Где в Сумах можно купить сабж (в кол-ве 3 шт)? Можно Б\у. И есть ли такие кронштейны для горизонтального крепления? Для такой АС BIG: You must be registered for see images И SKV Club 350: You must be registered for see images Останнє редагування: 16.07.11
Где в Сумах можно купить сабж (в кол-ве 3 шт)? Можно Б\у. И есть ли такие кронштейны для горизонтального крепления? Для такой АС BIG: You must be registered for see images И SKV Club 350: You must be registered for see images
V vim New Member 16.07.11 #3 скажешь: "тоже так хо" You must be registered for see images реально эт под заказ у дедуль сделать)
Z3RG Забанен 16.07.11 #4 Так уныло.... Фантазия скуднеет.:facepalm: Вот эскизик мой. Это самому если делать. Есть подобные в продаже. You must be registered for see images Вкладення Копия Сборка.jpg 15.3 КБ Перегляди: 345
Так уныло.... Фантазия скуднеет.:facepalm: Вот эскизик мой. Это самому если делать. Есть подобные в продаже. You must be registered for see images
Sergius.UZ. Нет неудач, есть опыт... 16.07.11 #5 Могу сделать.Напиши... что именно хочешь...Найди больше фоток...чтобы сообразил варианты.
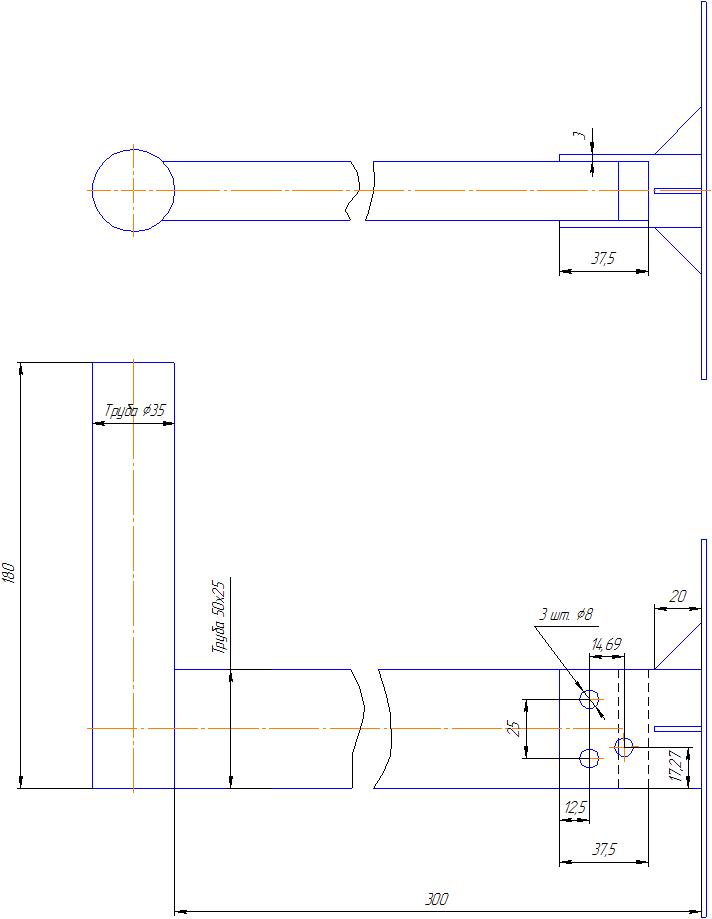
Z3RG Забанен 17.07.11 #7 МяГкИй-И-пУшИсТыЙ сказав(ла): Могу сделать.Напиши... что именно хочешь...Найди больше фоток...чтобы сообразил варианты. Натисніть, щоб розгорнути... Появились изменения. Есть возможноть забрать из Сум. Вот эскиз с размерами (не все, эскиз для представления, что за железяка). Надо 3 шт до среды. Сколько будет стоить? Жду ответа в л\с. Вкладення Фрагмент.jpg 45 КБ Перегляди: 264
МяГкИй-И-пУшИсТыЙ сказав(ла): Могу сделать.Напиши... что именно хочешь...Найди больше фоток...чтобы сообразил варианты. Натисніть, щоб розгорнути... Появились изменения. Есть возможноть забрать из Сум. Вот эскиз с размерами (не все, эскиз для представления, что за железяка). Надо 3 шт до среды. Сколько будет стоить? Жду ответа в л\с.